• LA TESTE DE BUCH
  • |
  • à partir de 455 500 €

Description

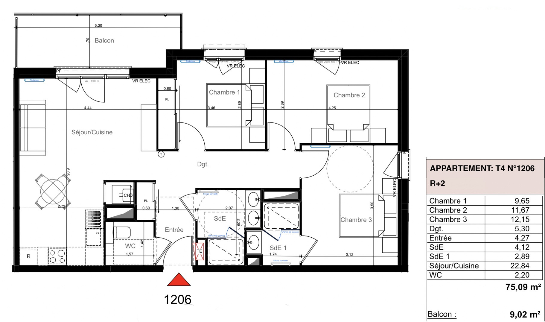
LA TESTE DE BUCH - Appartement de 75,09m² de type 4 en R+2.
Le nouveau programme est idéalement situé sur le bassin d'Arcachon, située à deux pas du marché municipal, de la gare et à quelques minutes à pieds du port et de ses cabanes ostréicoles
L'appartement comprend 3 chambres, une salle d'eau avec WC indépendant, une cuisine ouverte sur le séjour, ainsi qu'un balcon de 9,02m².

* FRAIS DE NOTAIRE REDUITS : 2,5 %
Fiscalité : Zone B1 - PINEL/PTZ
Chaudière individuelle au gaz

Les informations sur les risques auxquels ce bien est exposé sont disponibles sur le site Géorisques : www. georisques. gouv. fr.
Pour plus de renseignements, veuillez contacter L'AGENCE LA COCCINELLE IMMOBILIERE 33470 GUJAN-MESTRAS - ACCUEIL: ZERO CINQ..56.66.16.27 Pour fixer un RDV des conseillers à votre écoute : M. Killian PHILIPPE : ZERO SIX..67.95.58.16<br><br>Les informations sur les risques auxquels ce bien est exposé sont disponibles sur le site Géorisques : <a class="mention-geo-risque" href="https://www.georisques.gouv.fr">www.georisques.gouv.fr</a>

Localisation

La Coccinelle Immobilière
  • Alerte email
  • Favoris 0
  • 0